APPARTAMENTO CON TERRAZZO A VALDONEGA

In vendita
4 o più locali
Verona (Valdonega)
890.000 €
Descrizione
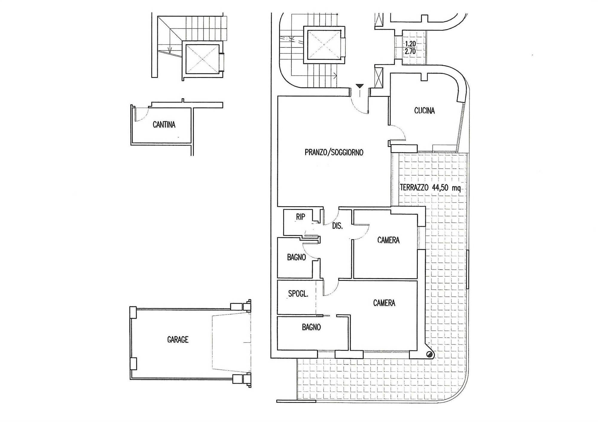
V. GAZZERA vendesi nell'esclusivo contesto residenziale di "Villa Giano" splendido appartamento sito al p. I° pregevolmente arredato con grande terrazzo affacciato nel verde e vista Santuario. L'immobile è locato sino a giugno 2027 e si compone di ampio salone/soggiorno, cucina abitabile con accesso su terrazzo panoramico di 45 mq, camera matrimoniale con bagno privato e cabina armadio, seconda camera, secondo bagno in mosaico, lavanderia, cantina e ampio garage nell'interrato per auto di grandi dimensioni.
Grandi vetrate direttamente sul terrazzo e nel verde, domotica ed impianti di ultima generazione, caratterizzano questa esclusiva soluzione, per chi ricerca oltre allo charme, confort, serenità ed armonia. Cl.En. A1 - Ipe 77,47 €. 890.000,00
Caratteristiche principali
Codice:
RUVI89
Città:
Verona (Valdonega)
Categoria:
4 o più locali
Spese condominiali:
3.600 € / anno
Locali:
6
Camere:
2
Bagni:
2
Mq:
140
Box:
1
Mq Box:
21
Terrazzi:
1
mq Terrazzo:
45
Piano:
1
Anno:
2011
Classe energetica:
A1
77,47
Stato Immobile:
Ottimo
Grado:
Signorile
Posizione:
Centro
Panorama:
Vista Aperta
Orientamento:
Sud Est
Lati Liberi:
2
Giardino:
Comune
Arredi:
Possibilità
Tipo Soggiorno:
Doppio
Tipo Cucina:
Abitabile
Riscaldamento:
Centralizzato
Tipo Riscaldam.:
Caldaia a Condensazione
Tipo Impianto:
Pavimento
Fonte Energetica:
Metano
Acqua Calda:
Centralizzata
Raffrescamento:
Centralizzato
Infissi:
PVC Doppio Vetro
Serramenti:
Ottimo
Persiana:
Tapparella PVC
Pavim. Giorno:
Gres Porcellanato
Pavim. Notte:
Parquet
Pavim. Cucina:
Gres Porcellanato
Pavim. Bagno:
Gres Porcellanato
Accesso Disabili:
Nessuna Barriera
Accesso interno disabili:
Pieno accesso
Isolamento:
Presente
Isolamento termico:
Cappotto esterno
Isolamento acustico:
Isolamento completo
Impianto d’irrigazione:
Si
Accessori
Antifurto
Aria Condizionata
Ascensore
Cassaforte
Cancello Elettrico
Doppi Vetri
Fibra Ottica
Impianto Domotica
Impianto Fotovoltaico
Impianto Satellitare
Lavanderia
Parco Condominiale
Passaggio Automobilistico
Passaggio Pedonale
Porta Blindata
Tapparelle Elettriche
Tripli Vetri
Vasca Idromassaggio
Video Citofono
Mappa
Via Gazzera, 1 - Verona (VR)
Richiedi informazioni
Invia
Cookie preference